тёплый, светлый и энергоэффективный дом, 180 м²

Одноэтажный дом в классическом стиле

Проект П-180:Двухэтажный дом в скандинавском стиле, 180 м²
П-180- тёплый, светлый и энергоэффективный дом в скандинавском стиле, созданный для комфортной жизни в северном климате. В проекте соединены лаконичная архитектура, натуральная эстетика, просторные помещения, большие окна, терраса и продуманные инженерные решения.

Этот дом не пытается выглядеть сложнее, чем он есть. Его сила - в простоте, тепле и честной архитектуре. Чёткие линии, спокойные фасады, большое количество естественного света и функциональная организация пространства делают проект П-180 отличным выбором для постоянного проживания семьи.

Скандинавская архитектура для северного климата
Проект П-180 разработан с учётом особенностей климата Ленинградской области: влажности, ветров, перепадов температур и короткого светового дня. Поэтому здесь важна не только красота фасада, но и то, как дом работает каждый день.

Скандинавский стиль в этом проекте раскрывается через простые формы, сдержанную геометрию, натуральные материалы и визуальное ощущение тепла. Панорамное остекление наполняет интерьер светом, а просторная терраса становится естественным продолжением дома в тёплое время года.

Дом, в котором много света и воздуха
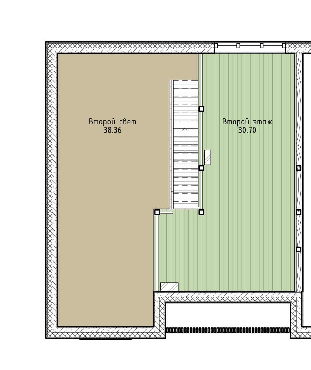
Главное настроение проекта - спокойствие. Внутри предусмотрены просторные общие зоны, приватные спальни, кабинет, технические помещения, санузлы, зона отдыха и выход на большую террасу.

Особое внимание привлекает пространство со вторым светом. Оно делает интерьер визуально выше, свободнее и выразительнее. Такой приём создаёт ощущение большого загородного дома, где свет не зажат стенами, а спокойно наполняет пространство.

П-180 - это дом для семейных ужинов, тихих зимних вечеров, работы в отдельном кабинете, отдыха на террасе и жизни без ощущения тесноты.

Тёплый дом для круглогодичного проживания
Проект ориентирован на энергоэффективность и комфорт в любое время года. Усиленное утепление, качественные стеклопакеты, продуманная вентиляция с рекуперацией тепла и морозостойкие инженерные решения позволяют дому сохранять тепло и снижать расходы на отопление.

Здесь всё рассчитано на реальную северную жизнь, а не на красивую картинку из каталога. Зимой - тепло. Осенью - сухо и надёжно. Летом - светло и просторно. Дом должен служить, а не требовать постоянных компромиссов.

Преимущества проекта П-180
Скандинавский стиль

Лаконичные формы, спокойная архитектура, натуральные оттенки и элементы фахверка создают современный, уютный и благородный образ дома.

Панорамное остекление
Большие окна помогают максимально использовать естественный свет, что особенно важно для регионов с коротким световым днём.

Просторная терраса
Терраса становится полноценной зоной отдыха: здесь можно организовать летнюю гостиную, обеденную зону, место для барбекю или спокойное пространство для отдыха на свежем воздухе.

Второй свет
Пространство со вторым светом делает дом визуально масштабнее, добавляет воздуха и создаёт эффектный интерьерный акцент.

Энергоэффективность
Усиленное утепление, тройные стеклопакеты и вентиляция с рекуперацией помогают сохранять тепло и уменьшать затраты на отопление.

Надёжные конструкции
В проекте предусмотрены прочные строительные решения: утеплённая фундаментная плита, монолитный железобетон, усиленная гидроизоляция кровли и защита инженерных систем от промерзания.

Комфорт для семьи
Дом подходит для постоянного проживания: здесь есть место для отдыха, работы, хранения, приёма гостей и спокойной повседневной жизни.

Инженерные решения
Проект П-180 рассчитан на эксплуатацию в непростом климате. В нём можно предусмотреть комплекс современных технических решений:

  • утеплённую шведскую плиту,
  • монолитные железобетонные стены,
  • усиленное утепление наружного контура,
  • тройные стеклопакеты,
  • вентиляцию с рекуперацией тепла,
  • морозостойкие коммуникации,
  • кровлю с усиленной гидроизоляцией,
  • систему антиобледенения водостоков.

Такой подход делает дом не только красивым, но и практичным. Скандинавская архитектура здесь работает по своему прямому назначению: защищает, сохраняет тепло и создаёт спокойную среду для жизни.

Почему проект подходит для Ленинградской области
П-180 хорошо адаптирован под условия региона. Дом рассчитан на высокую влажность, холодные сезоны, сильные ветра и температурные перепады.

Большие окна помогают поймать максимум дневного света, утепление снижает теплопотери, а продуманная инженерия делает проживание комфортным круглый год. Это тот случай, когда архитектура не спорит с климатом, а спокойно и умно с ним договаривается.

Строительство под ключ
Проект П-180 может быть реализован в формате строительства под ключ. Это удобное решение для тех, кто хочет пройти путь от проекта до готового дома без лишней суеты и разрозненных подрядчиков.

Ориентировочный срок строительства: 7–9 месяцев
Гарантия на конструкции: до 10 лет
Возможность участия: в программах льготной ипотеки

Проект П-180 - скандинавский дом для жизни в тепле и тишине
П-180- это современный дом с северным характером: спокойный, надёжный, светлый и тёплый. В нём нет лишней декоративности, зато есть то, что действительно важно для жизни: продуманное пространство, энергоэффективность, большая терраса, второй свет и архитектура, которая не устареет через пару сезонов.

Это дом для тех, кто хочет жить красиво, но без показной суеты. Для семьи, для тишины, для зимних вечеров, для летнего воздуха, для настоящей загородной жизни.


Воспользуйтесь упрощенной процедурой получения ипотечного кредита для строительства дома!

Если вы мечтаете о собственном доме, но вас пугают сложности с ипотекой или выбором подрядчика, сотрудничество с «Импульс Строй Сервис» через платформу Дом.РФ — это надежное и выгодное решение. Вот почему:

1. Доступная ипотека с господдержкой
Специальные программы Дом.РФ позволяют оформить кредит на строительство по ставке от 5-6% годовых (в зависимости от программы). Например:

  • 6% — для семей с детьми и IT-специалистов.
  • 5% — по дальневосточной ипотеке.
  • Военная ипотека — для участников НИС.
    «Импульс Строй Сервис» помогает клиентам подобрать оптимальный вариант и быстро оформить заявку через партнерские банки.

2. Гарантия качества от проверенного подрядчика
Компания прошла строгий отбор Дом.РФ, что означает:

  • Финансовую устойчивость.
  • Соблюдение сроков строительства.
  • Использование качественных материалов.
    Выбирая типовой проект из каталога, вы получаете предсказуемый результат без скрытых переплат.

3. Удобный процесс от проекта до ключей
Готовые проекты с прозрачной сметой.

  • Онлайн-калькулятор для расчета ипотеки прямо на сайте.
  • Личный кабинет для контроля этапов строительства.
  • «Импульс Строй Сервис» берет на себя все организационные вопросы: от согласования документов до сдачи дома «под ключ».
4. Поддержка на всех этапах
Помощь в сборе документов для ипотеки.

  • Консультации по выбору участка и проекта.
  • Юридическое сопровождение сделки.

5. Безопасность сделки
  • Фиксированная цена в договоре.
  • Возможность привлечения страховых компаний.
  • Прозрачные условия сотрудничества.


Дом для спокойной загородной жизни
Проект П-90
Одноэтажный дом в классическом стиле
Площадь 90 м²
компактный, тёплый одноэтажный дом
Проект П-105
Одноэтажный дом в стиле шале
Площадь 105 м²
уютный одноэтажный дом
Проект П-125
Одноэтажный дом в классическом стиле
Площадь 125 м²
Классика, рассчитанная на десятилетия
Проект П-145
Одноэтажный монолитный дом в классическом стиле
Площадь 145 м²
светлый и энергоэффективный дом
Проект П-180
Двухэтажный дом в скандинавском стиле
Площадь 180 м²